The project aims to enhance the experience of the users in the architectural space through the use of textiles


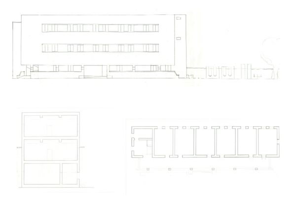
Done by taking measurement of the building to get a sense of space

Studying building elements of the different areas within our space gave us insights into the design consideration made while designing a space for the differently-abled. Parapets and railings were used extensively in the blind school for their safety and navigation. In blind school, there is no window opening in the corridor to avoid any hazard for students passing by. Less obstruction makes it easy to navigate and differentiate. In pre-school, windows are smaller and at lower height to make them accessible to the small children.

The study of colour and textures at the different areas in the school helped us to learn design consideration and user-specific standards being followed in the space. For example, the blind school has different textures on the floor and walls as indicators and safety measurements. Some textures on the wall are made due to constant touching by the visually impaired while navigating. Contrasting colours are used in certain areas for the ease of partially blind students. In pre-school. walls are painted with light blue colour which is in contrast with the colour of flesh. It helps deaf students in reading lip movement (as the person stands out against the blue background). Similarly, textures and colours are different in different areas to ease mobility. Floor textures are designed in such a way that it follows a direction and helps visually impaired in navigation through spaces.

The study of light and shadow helped us to learn about the footfalls on certain spaces across the campus. Deaf students prefer to gather under the shadow while we have observed blind being unaffected by the light. Whereas partially blind students avoid direct sunlight as it stains their eyes. Also, the preschool classes are designed such that there is a minimum shadow being formed as it hinders reading the lip movement.






Activity is the most important parameter of all. The 3 schools have different methods of performing some kind of activities. The activity area is separated for the three schools as they possess different challenges. The method of teaching is different too, deaf students require visual inputs whereas visually impaired students require auditory inputs. Games differ accordingly and incorporate different sensual stimuli. In the case of visually impaired students, mobility is an activity in itself, especially in the case of pre-school children where they are yet to adapt to the new environment. They make their own games and activities when there are fewer stimuli from the environment as they seek more stimuli. In the case of the visually impaired, this behaviour is called blind mannerism. Customs and rituals are also different for the schools. Morning prayer is performed in sign language in the deaf and mute school whereas visually impaired children use all kinds of instruments to perform the same. By observing their activities and rituals, I learned a lot about their behaviour, likeness, problems and needs. Which helped me in the opportunity mapping.

The activity highlighted blind mannerism that can be benefited from design intervention
"BLINDISM" - "STIM" for stimulation
"HUNGER" for physical stimulation




Mannerism is a movement of the body or some part of the body, that is not socially acceptable/appropriate. It contains movement, but no body language that is relatable.
The human body has excessive energy, motor overflow is common. If we are not navigating through spaces, if we are idling or sitting, we shift position, flip hands, etc. Sighted children learn body language through sight. Whereas, visually impaired children can not read body language and thus witness motor overflow resulting in mannerism. This mannerism is seen in the form of eye pressing, hand flickering, spinning, rocking back & forth/side to side, rocking head and jumping.



























To design a space for visually impaired students (Primary school students) that can help them release their motor flow by triggering various stimuli through the sense of movement, vision (for partially blind), touch and sound. These stimuli are triggered by providing them sensory experiences including touch, sound, smell and motor sense.

The mood board takes elements from the space and activities. The space can be seen as layers of shapes and forms and the activities are taking place in between these layers. Blind mannerism is the key focus in the area of activity so, it was included in the mood board.

The mood board takes elements from the space and activities. The space can be seen as layers of shapes and forms and the activities are taking place in between these layers. Blind mannerism is the key focus in the area of activity so, it was included in the mood board.




We use cookies to analyze website traffic and optimize your website experience. By accepting our use of cookies, your data will be aggregated with all other user data.